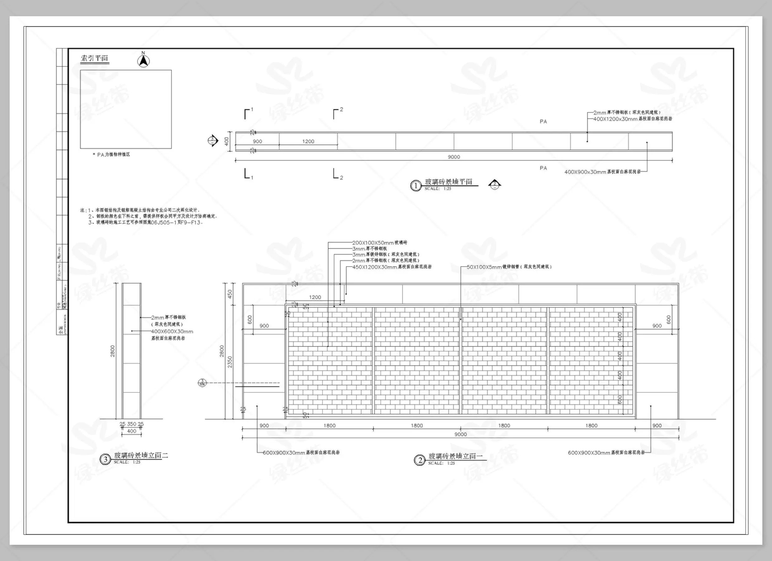
玻璃砖景墙隔断隔墙网红施工工艺做法详图大样图CAD施工图节点图

玻璃砖景墙隔断隔墙网红施工工艺做法详图大样图CAD施工图节点图-大怪兽分享
玻璃砖景墙隔断隔墙网红施工工艺做法详图大样图CAD施工图节点图
此内容为付费资源,请付费后查看
R5
立即购买
您当前未登录!建议登陆后购买,可保存购买订单
付费资源
已售 259
图片[1]-玻璃砖景墙隔断隔墙网红施工工艺做法详图大样图CAD施工图节点图-大怪兽分享
图片[2]-玻璃砖景墙隔断隔墙网红施工工艺做法详图大样图CAD施工图节点图-大怪兽分享
图片[23]-玻璃砖景墙隔断隔墙网红施工工艺做法详图大样图CAD施工图节点图-大怪兽分享
© 版权声明
THE END
喜欢就支持一下吧
点赞15 分享
评论 抢沙发

请登录后发表评论

    暂无评论内容