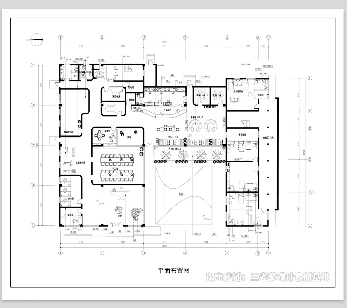
社区老年活动室活动中心居民休闲娱乐空间方案CAD平面布置图设计

社区老年活动室活动中心居民休闲娱乐空间方案CAD平面布置图设计-大怪兽分享
社区老年活动室活动中心居民休闲娱乐空间方案CAD平面布置图设计
此内容为付费资源,请付费后查看
R5
立即购买
您当前未登录!建议登陆后购买,可保存购买订单
付费资源
已售 89
图片[1]-社区老年活动室活动中心居民休闲娱乐空间方案CAD平面布置图设计-大怪兽分享
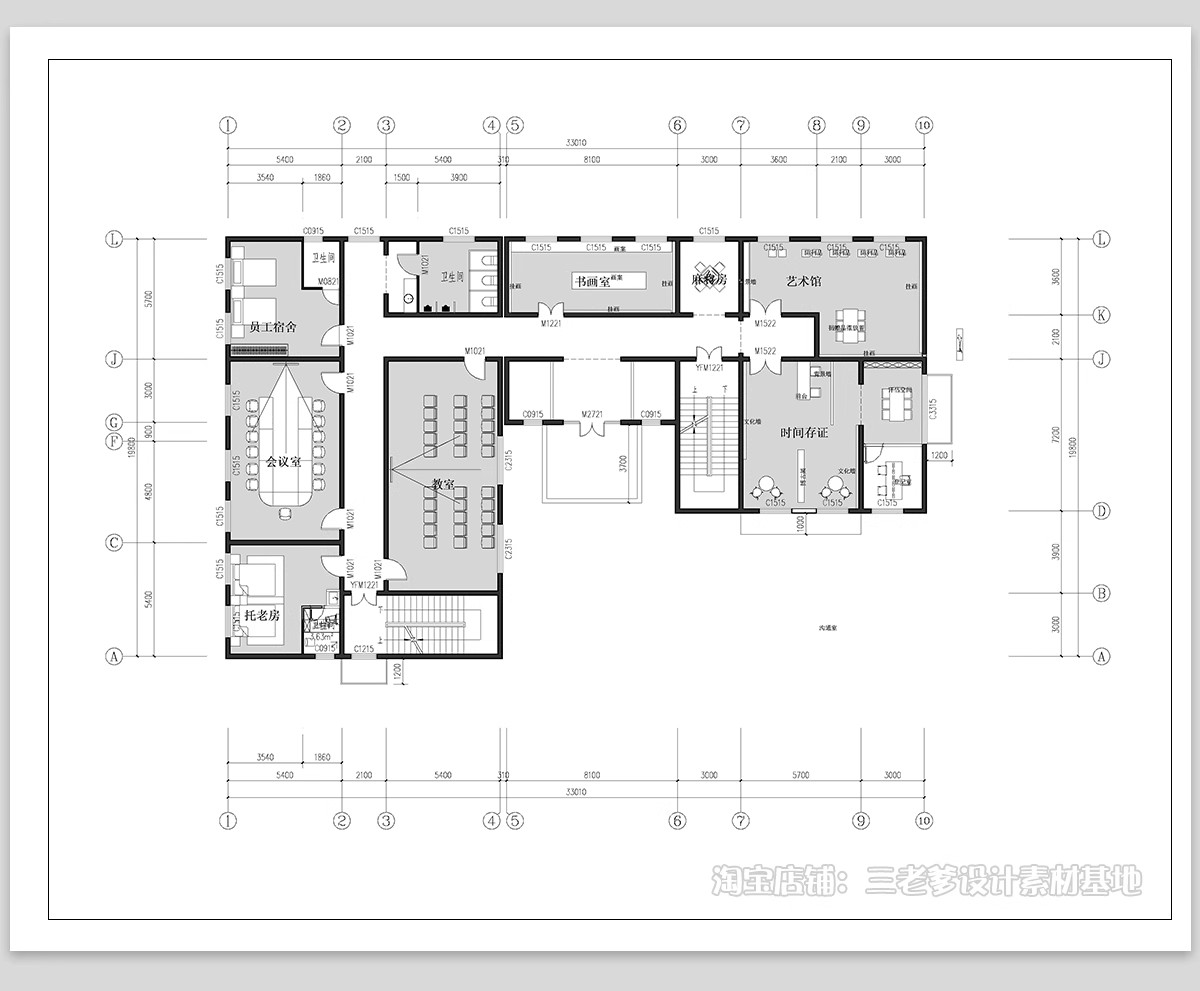
图片[2]-社区老年活动室活动中心居民休闲娱乐空间方案CAD平面布置图设计-大怪兽分享
图片[3]-社区老年活动室活动中心居民休闲娱乐空间方案CAD平面布置图设计-大怪兽分享
© 版权声明
THE END
喜欢就支持一下吧
点赞6 分享
评论 抢沙发

请登录后发表评论

    暂无评论内容