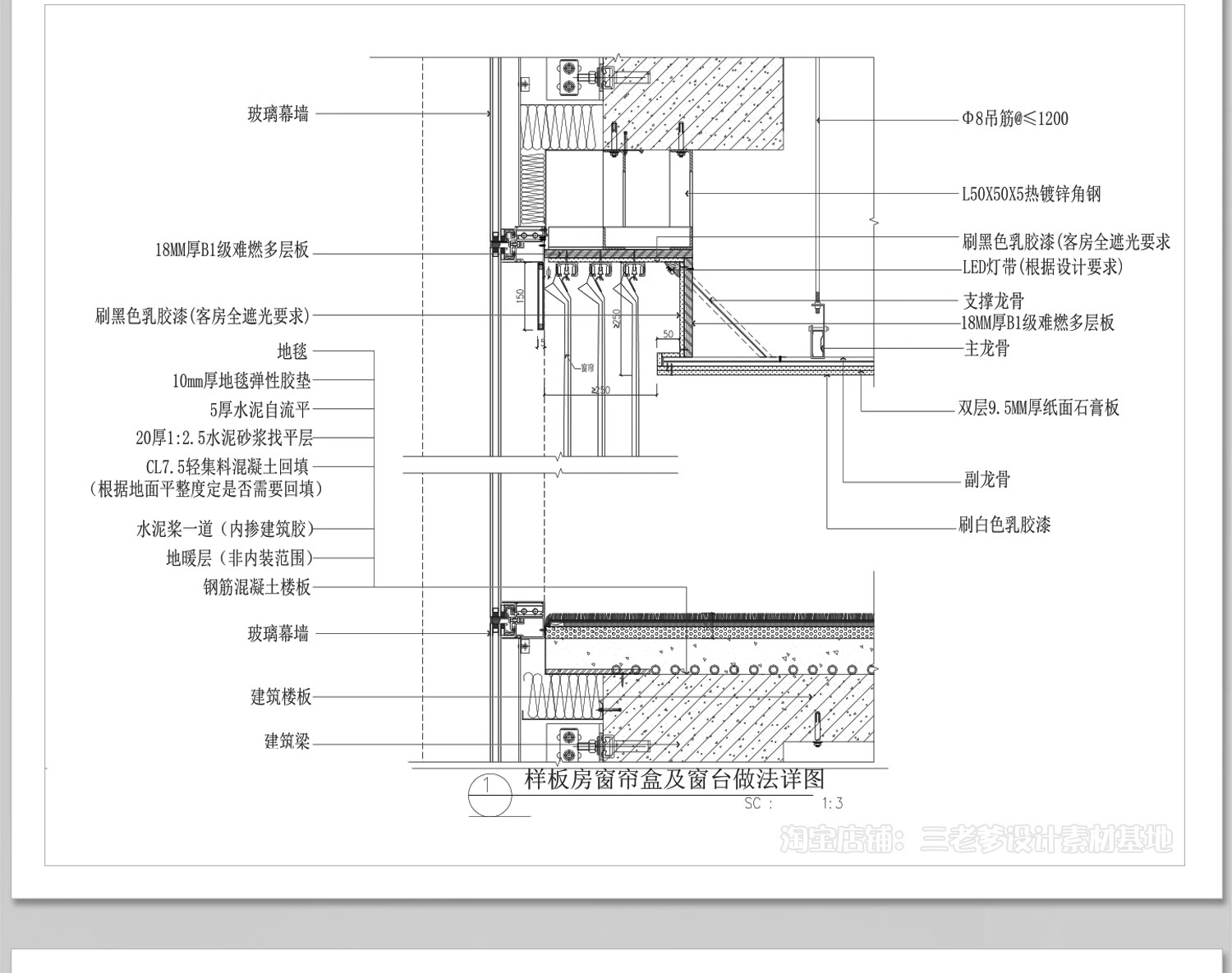
窗帘盒CAD施工图大样图暗藏式天花吊顶剖面做法工艺详图节点图库

窗帘盒CAD施工图大样图暗藏式天花吊顶剖面做法工艺详图节点图库-大怪兽分享
窗帘盒CAD施工图大样图暗藏式天花吊顶剖面做法工艺详图节点图库
此内容为付费资源,请付费后查看
R5
立即购买
您当前未登录!建议登陆后购买,可保存购买订单
付费资源
已售 96
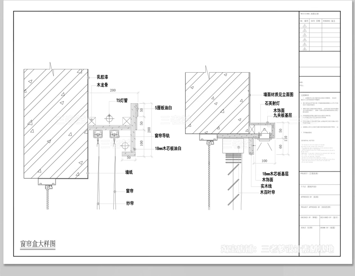
图片[1]-窗帘盒CAD施工图大样图暗藏式天花吊顶剖面做法工艺详图节点图库-大怪兽分享
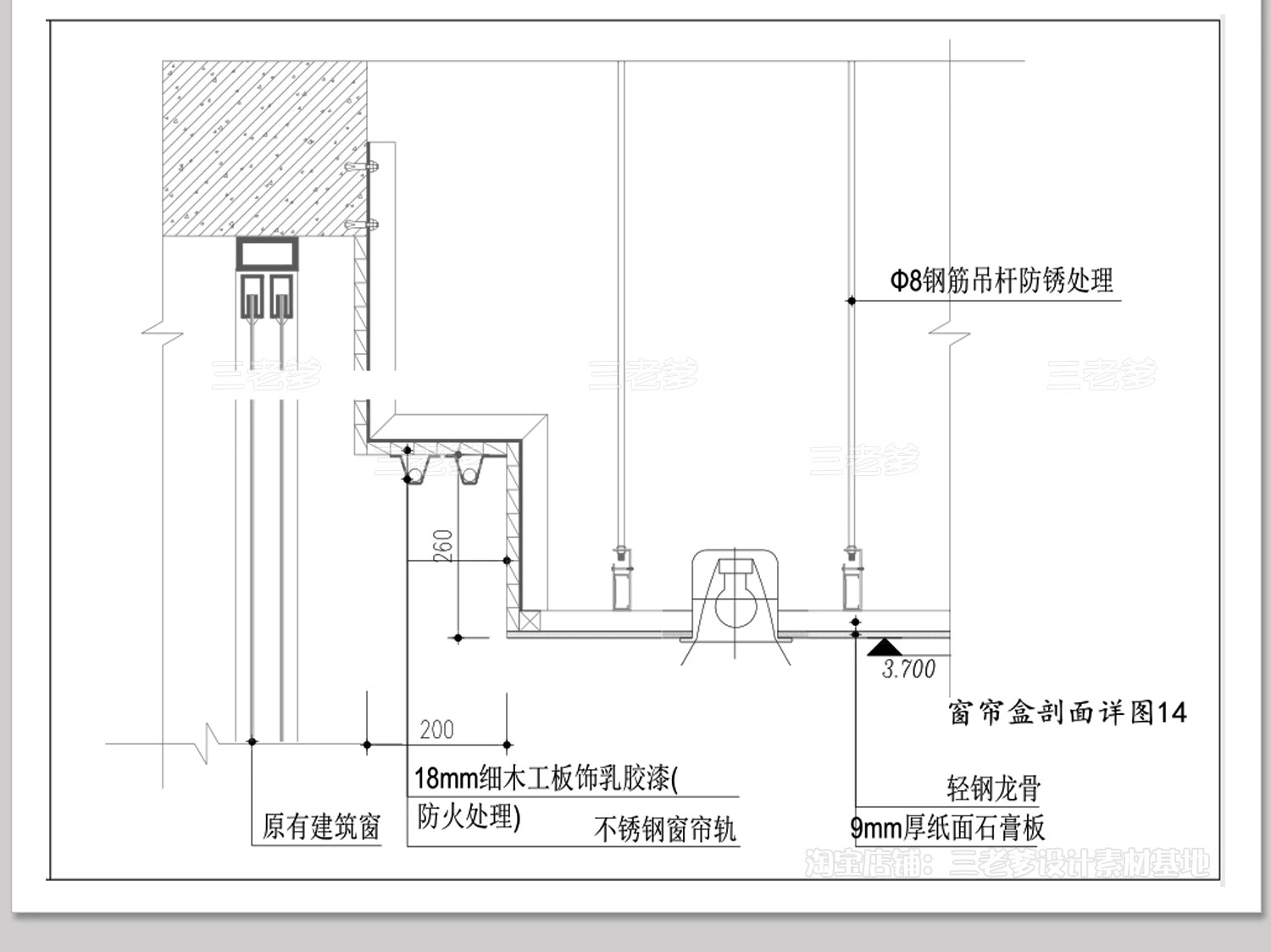
图片[2]-窗帘盒CAD施工图大样图暗藏式天花吊顶剖面做法工艺详图节点图库-大怪兽分享
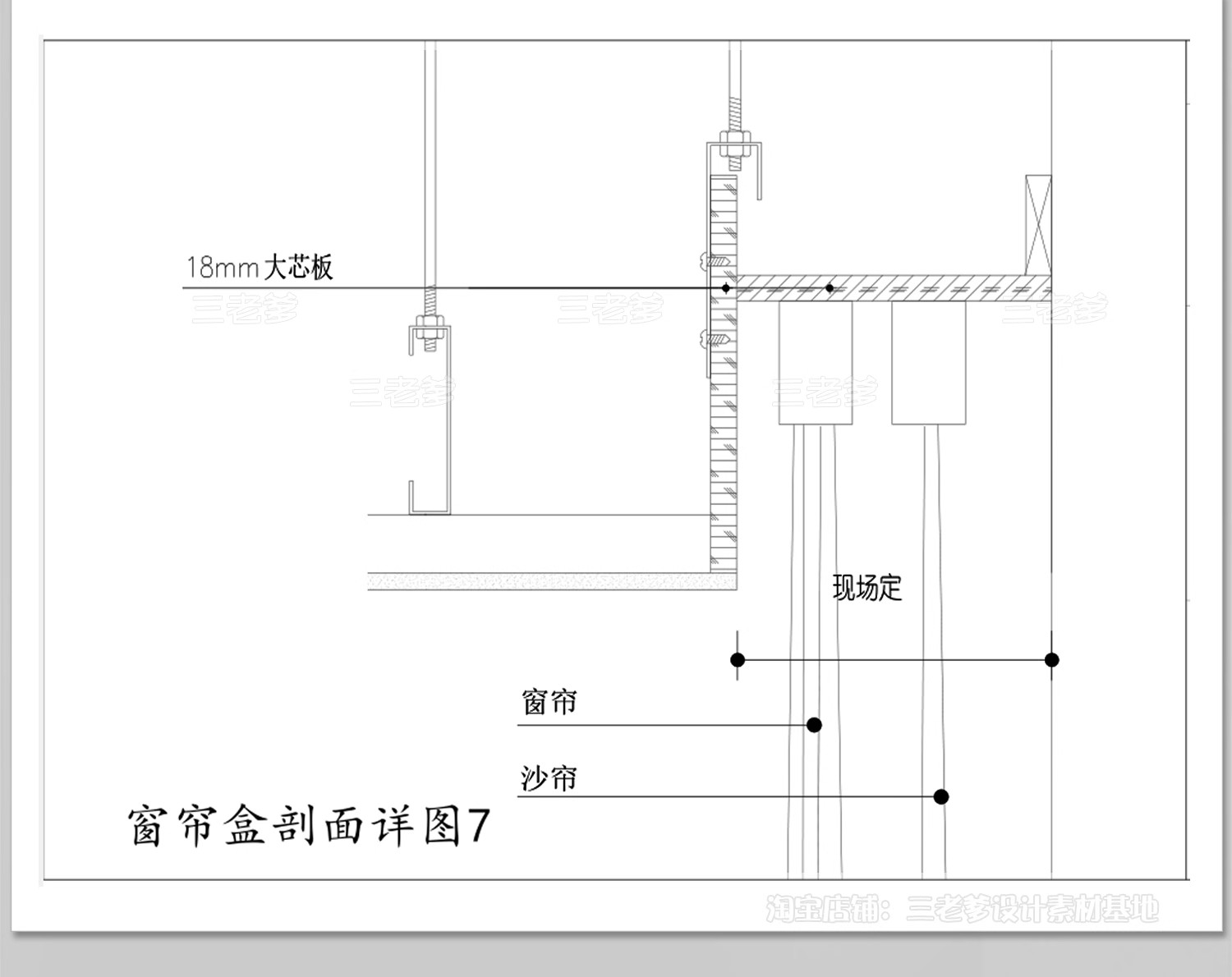
图片[3]-窗帘盒CAD施工图大样图暗藏式天花吊顶剖面做法工艺详图节点图库-大怪兽分享
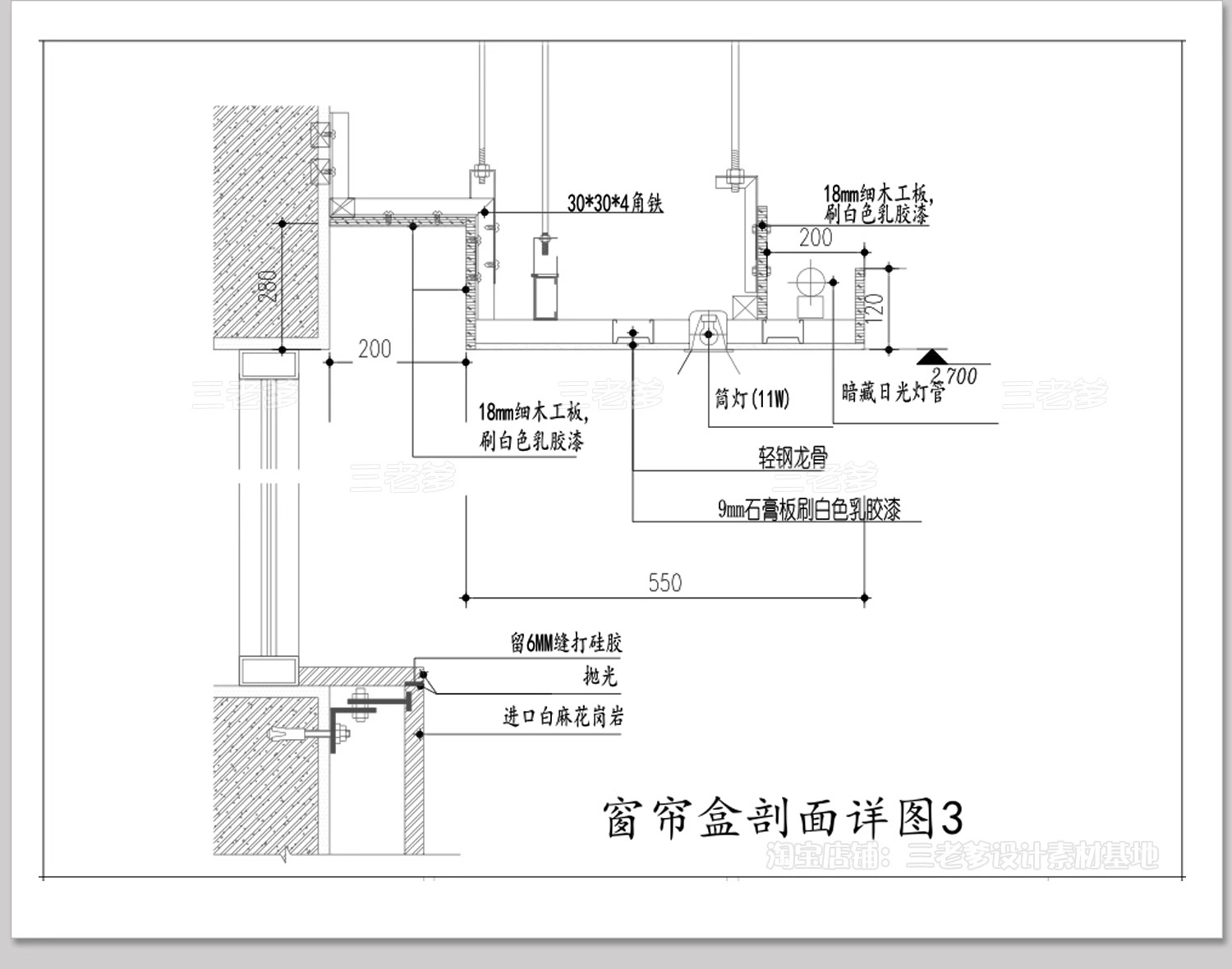
图片[27]-窗帘盒CAD施工图大样图暗藏式天花吊顶剖面做法工艺详图节点图库-大怪兽分享
© 版权声明
THE END
喜欢就支持一下吧
点赞11 分享
评论 抢沙发

请登录后发表评论

    暂无评论内容