家装室内相同户型图改造66种不同设计方案CAD平面图布局图合集

家装室内相同户型图改造66种不同设计方案CAD平面图布局图合集-大怪兽分享
家装室内相同户型图改造66种不同设计方案CAD平面图布局图合集
此内容为付费资源,请付费后查看
R5
立即购买
您当前未登录!建议登陆后购买,可保存购买订单
付费资源
已售 88
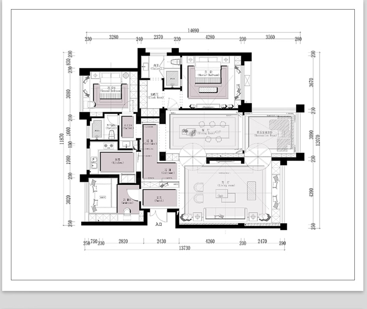
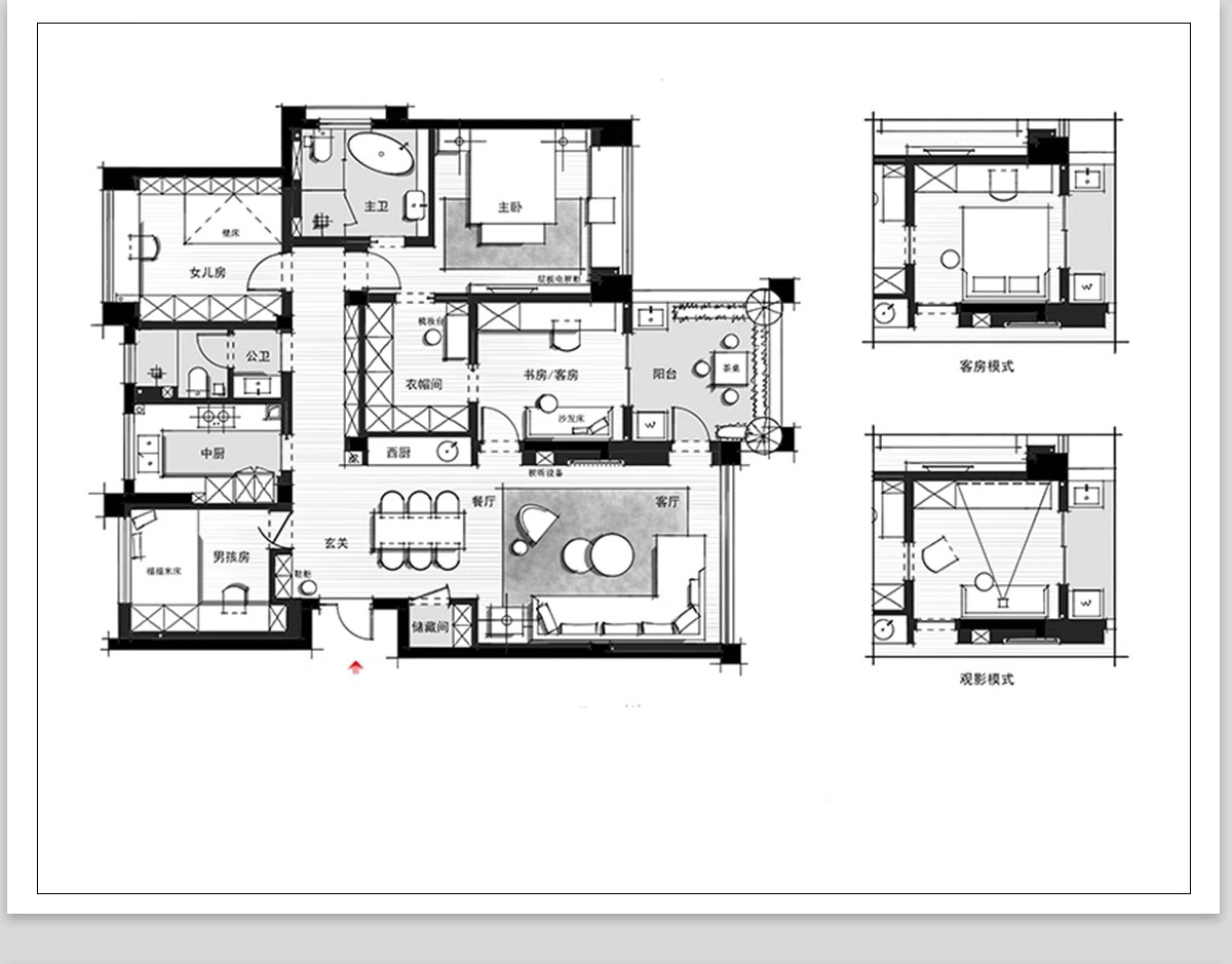
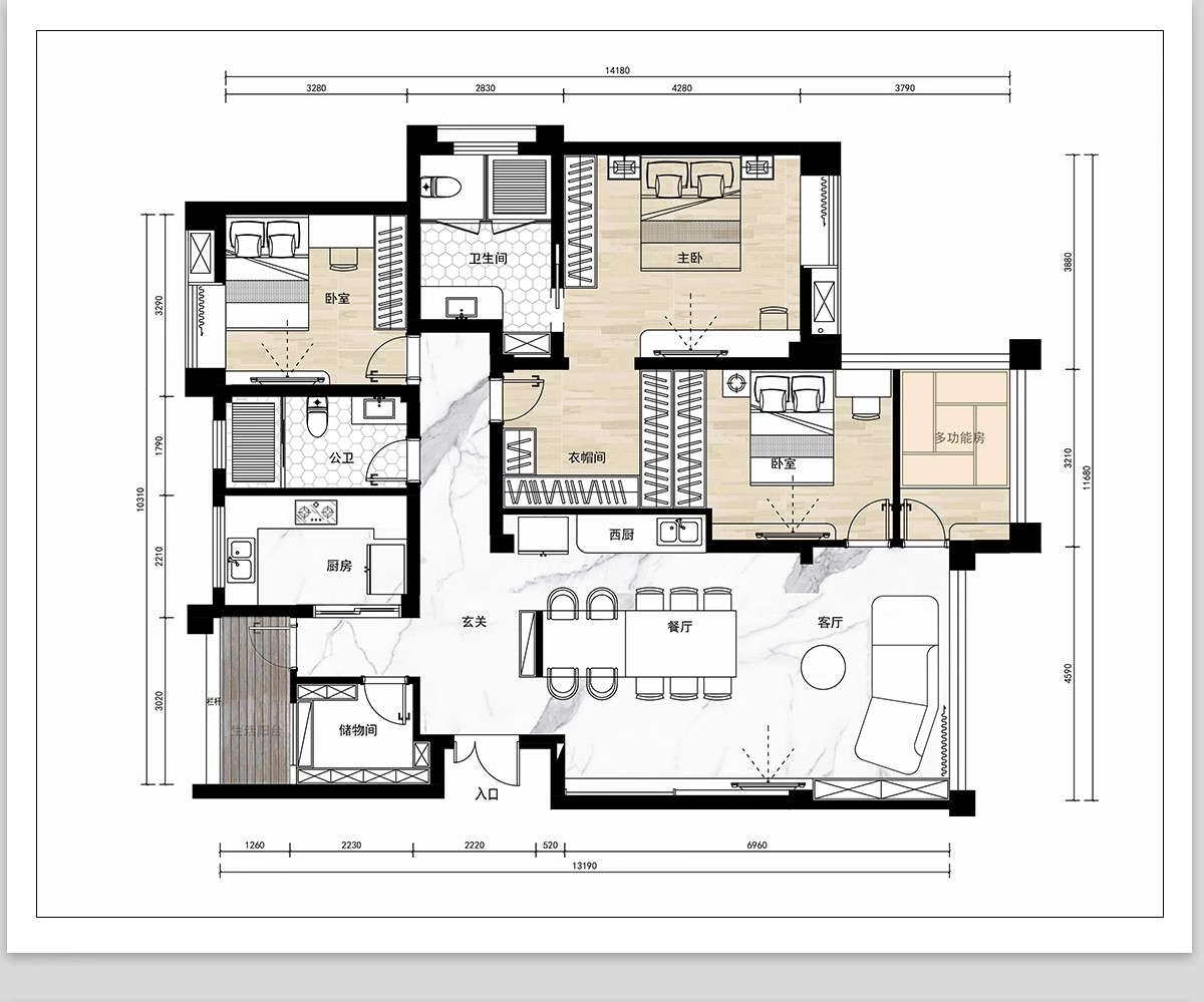
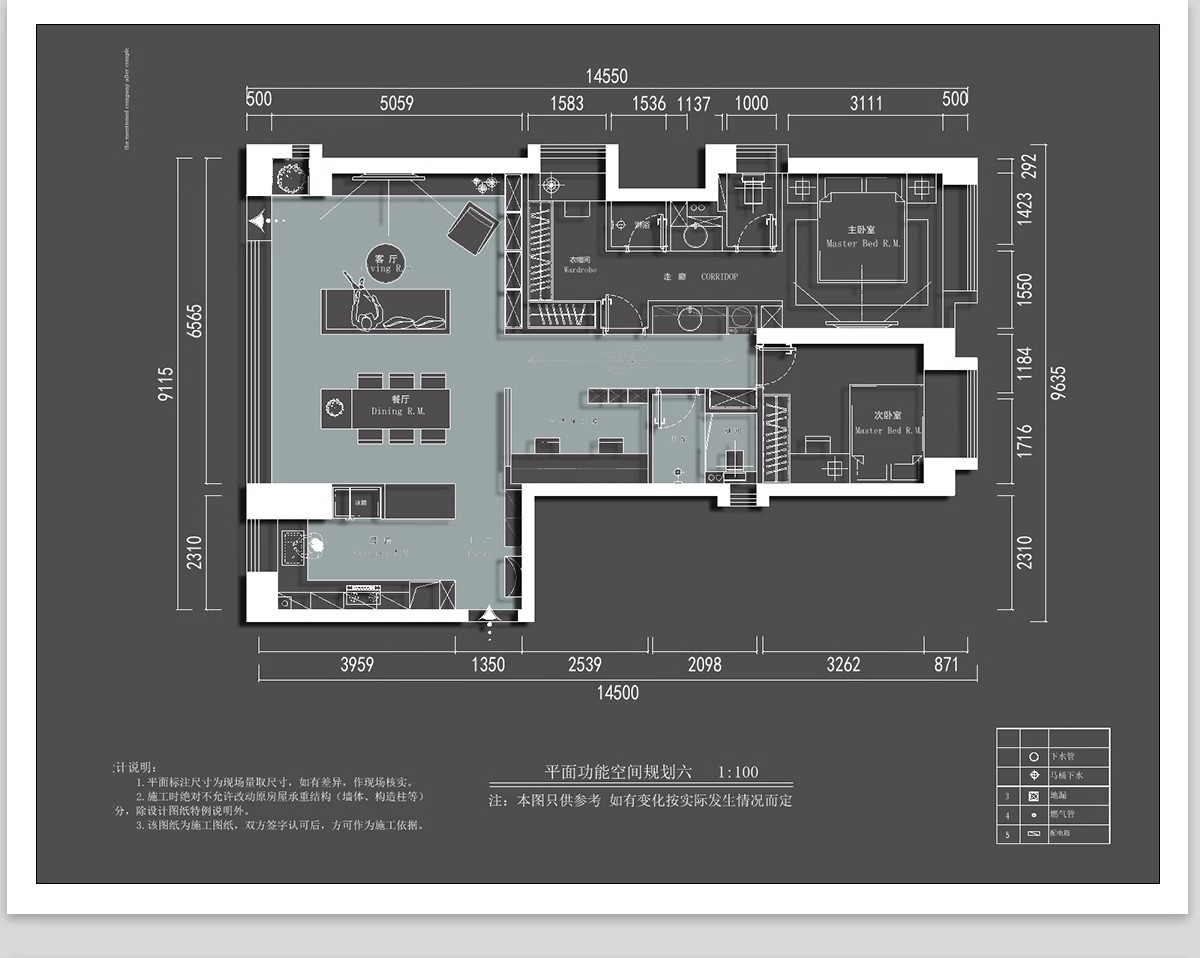
图片[1]-家装室内相同户型图改造66种不同设计方案CAD平面图布局图合集-大怪兽分享
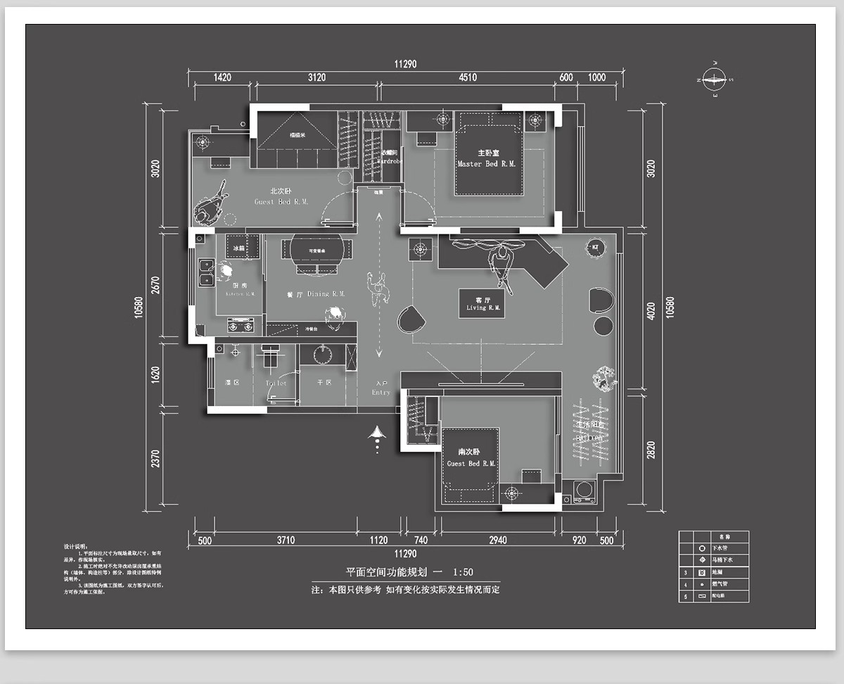
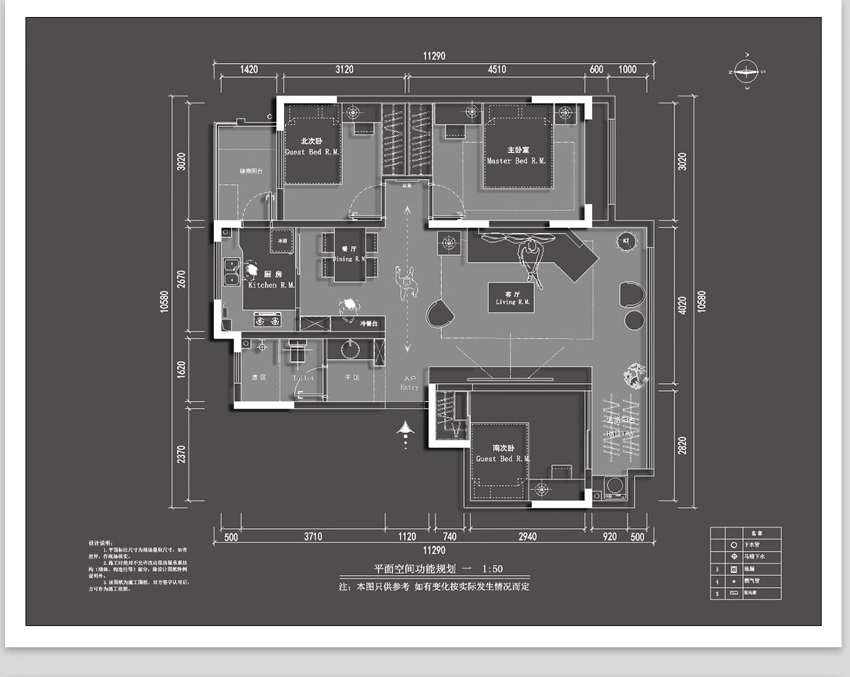
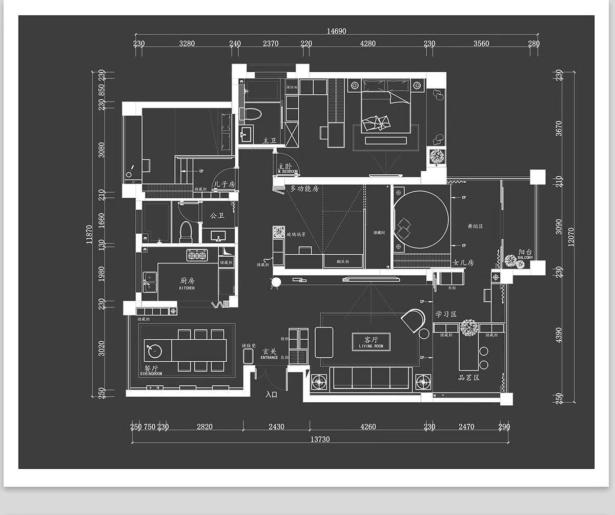
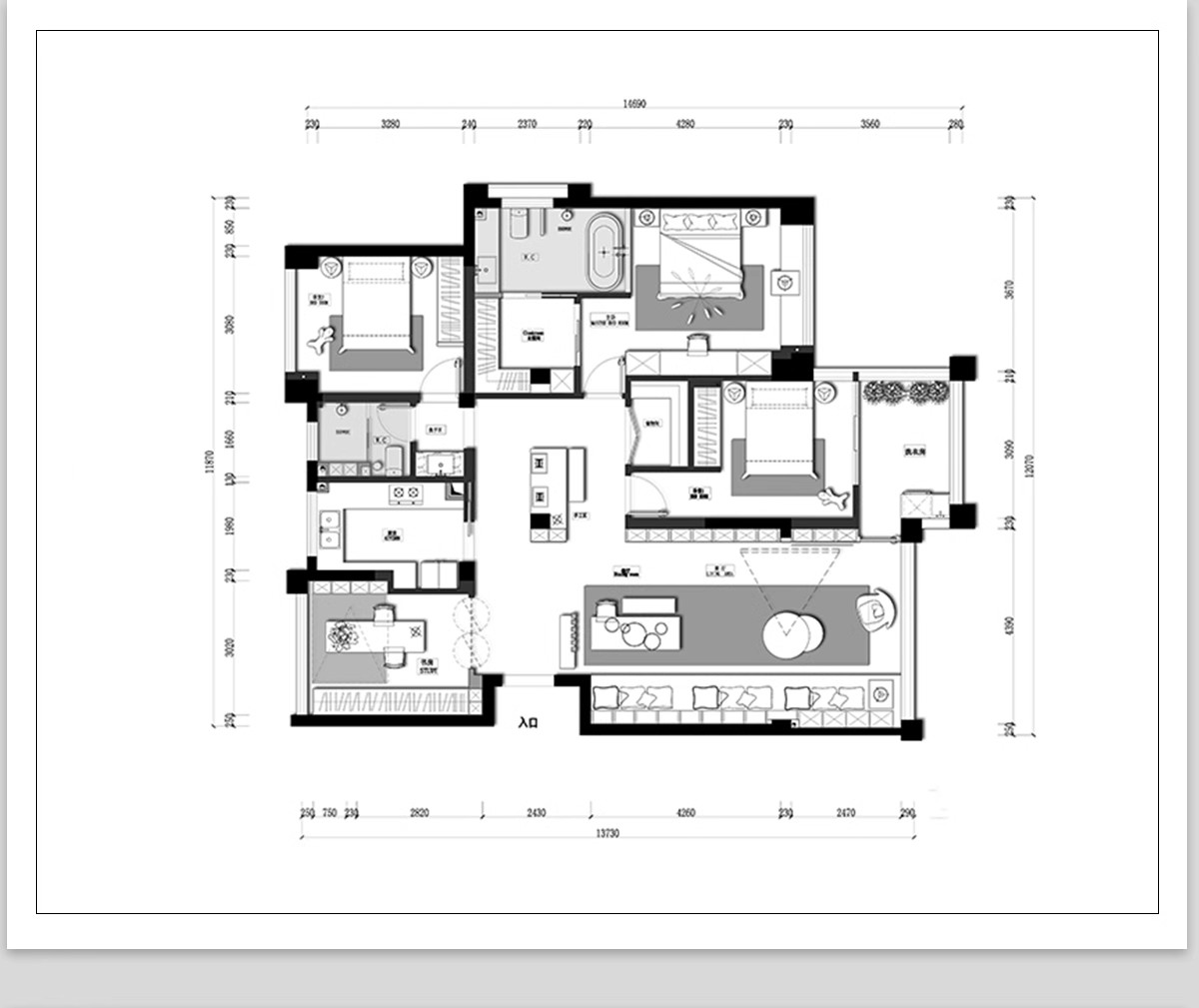
图片[2]-家装室内相同户型图改造66种不同设计方案CAD平面图布局图合集-大怪兽分享
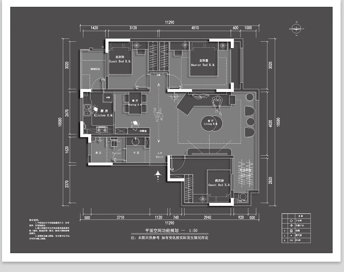
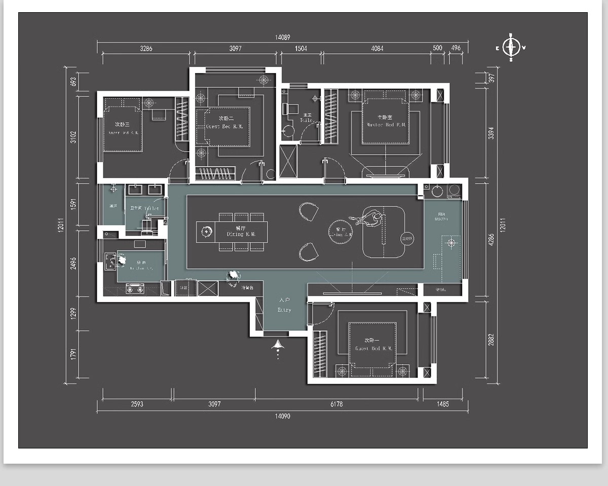
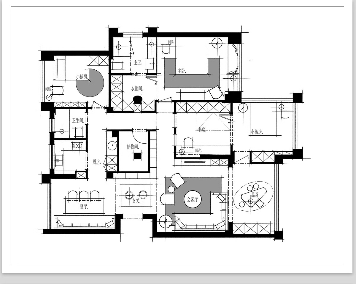
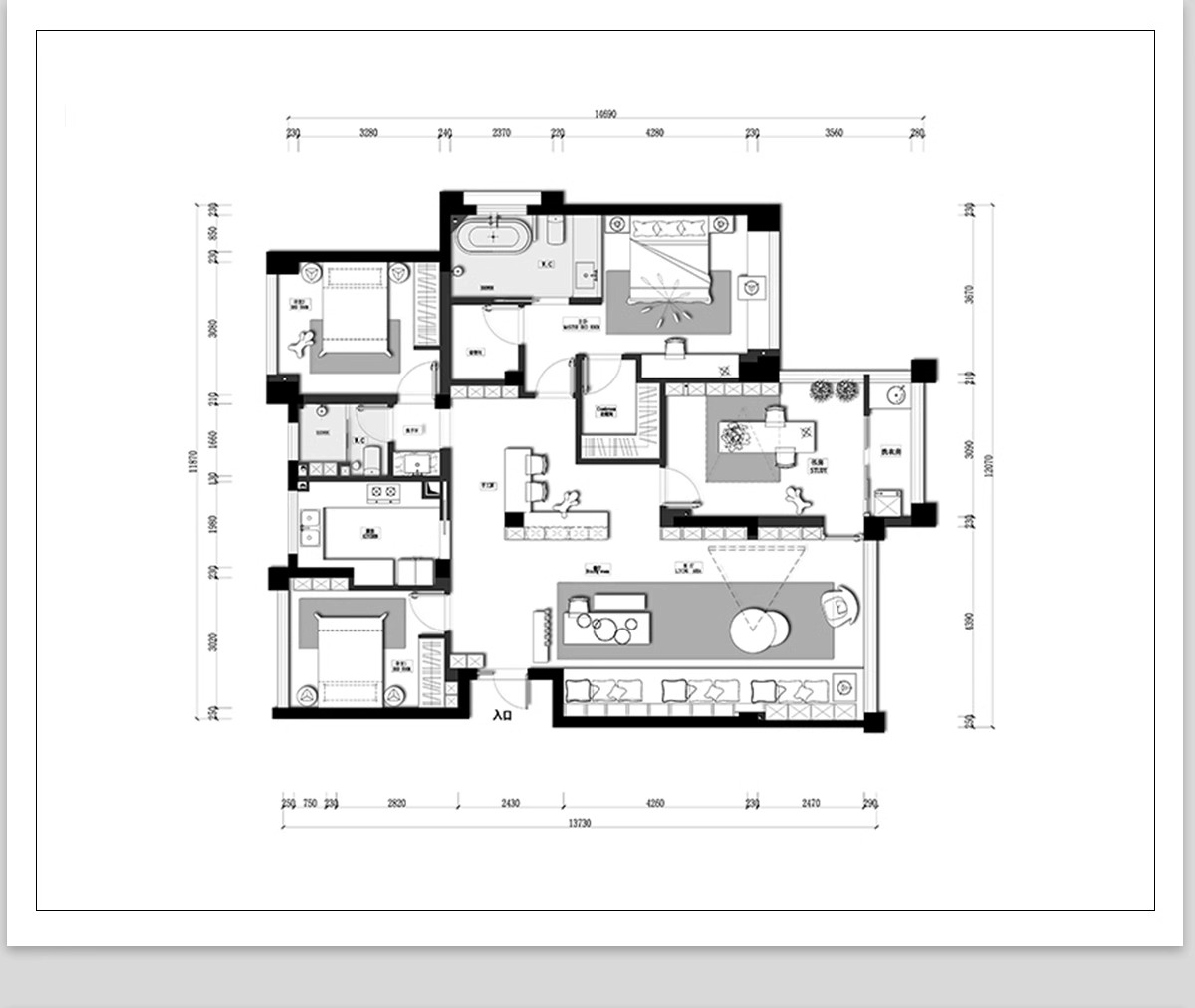
图片[3]-家装室内相同户型图改造66种不同设计方案CAD平面图布局图合集-大怪兽分享
© 版权声明
THE END
喜欢就支持一下吧
点赞14 分享
评论 抢沙发

请登录后发表评论

    暂无评论内容