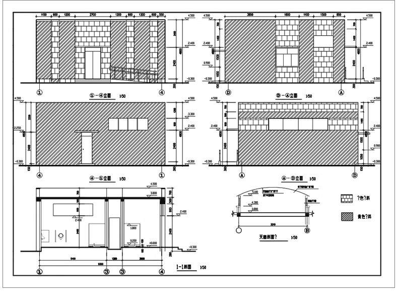
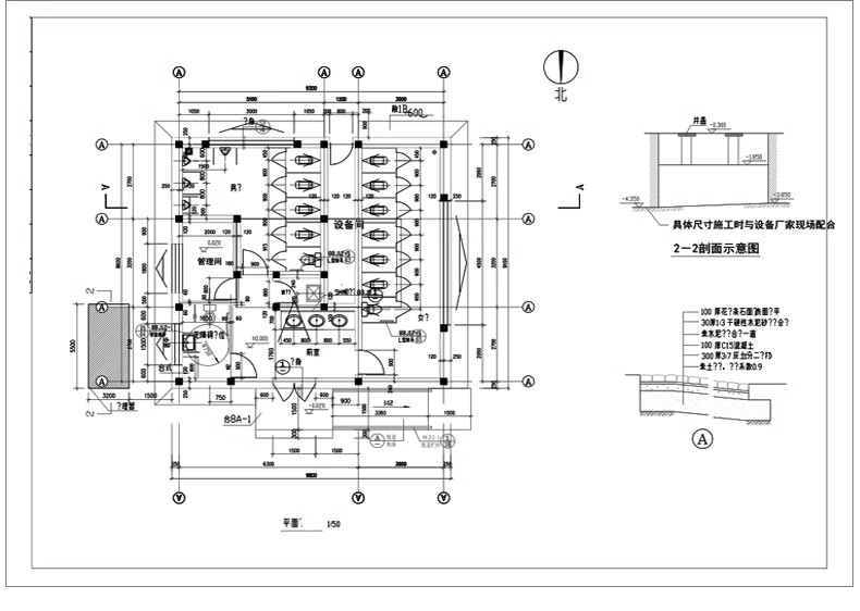
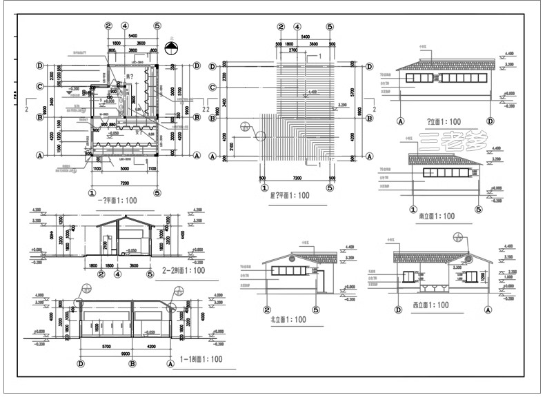
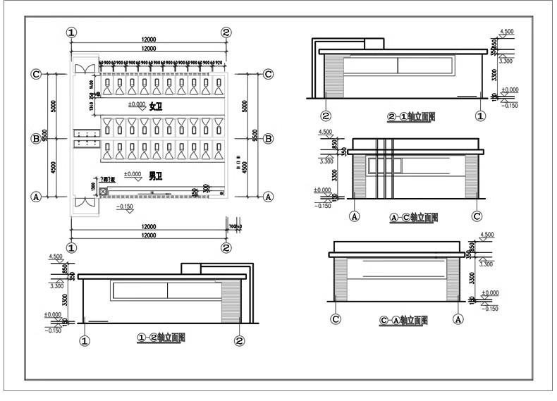
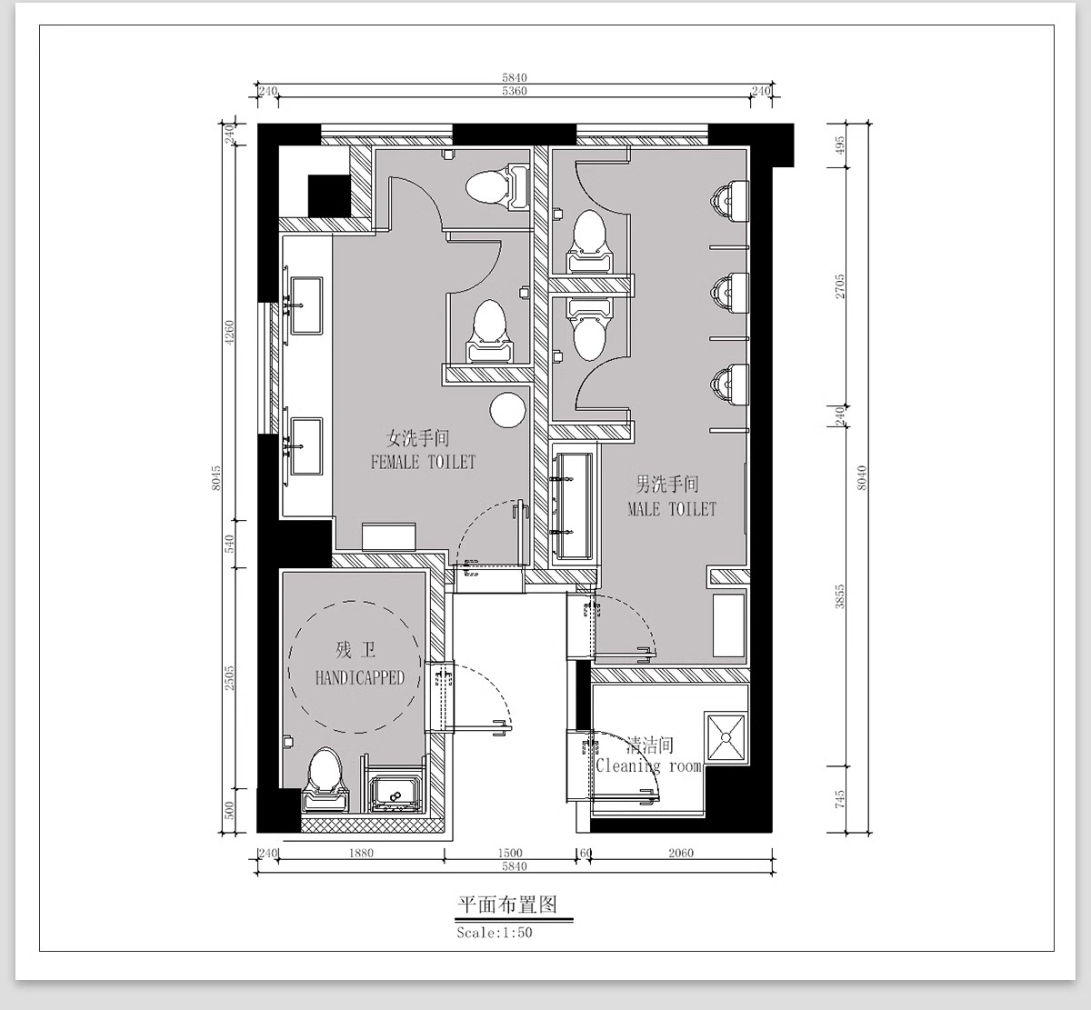
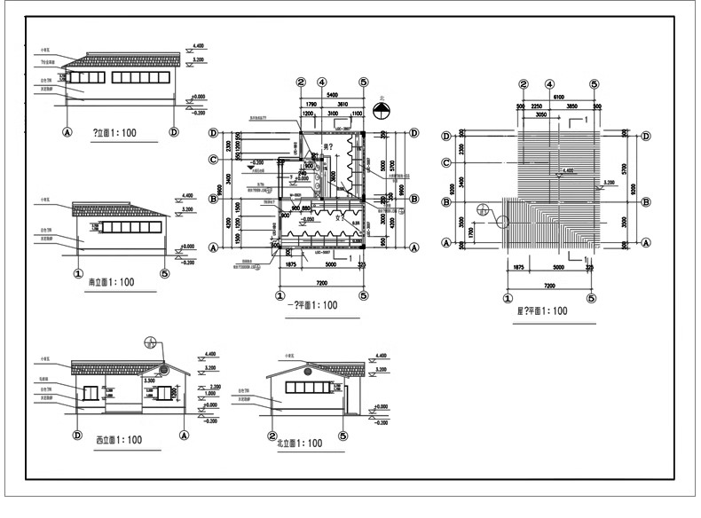
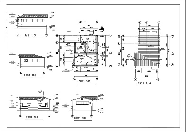
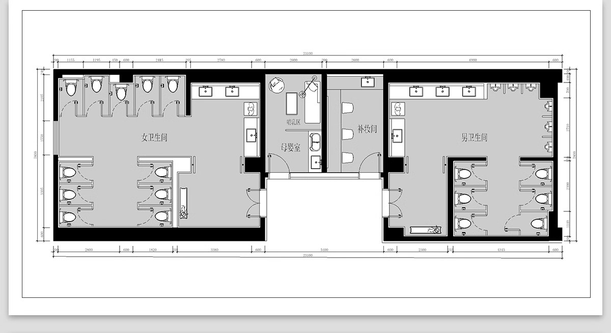
180套,厕所公厕建筑公共卫生间CAD施工图 户外洗手间平面布置方案布局图

180套,厕所公厕建筑公共卫生间CAD施工图 户外洗手间平面布置方案布局图-大怪兽分享
180套,厕所公厕建筑公共卫生间CAD施工图 户外洗手间平面布置方案布局图
此内容为付费资源,请付费后查看
R5
立即购买
您当前未登录!建议登陆后购买,可保存购买订单
付费资源
已售 88
图片[1]-180套,厕所公厕建筑公共卫生间CAD施工图 户外洗手间平面布置方案布局图-大怪兽分享
© 版权声明
THE END
喜欢就支持一下吧
点赞6 分享
评论 抢沙发

请登录后发表评论

    暂无评论内容