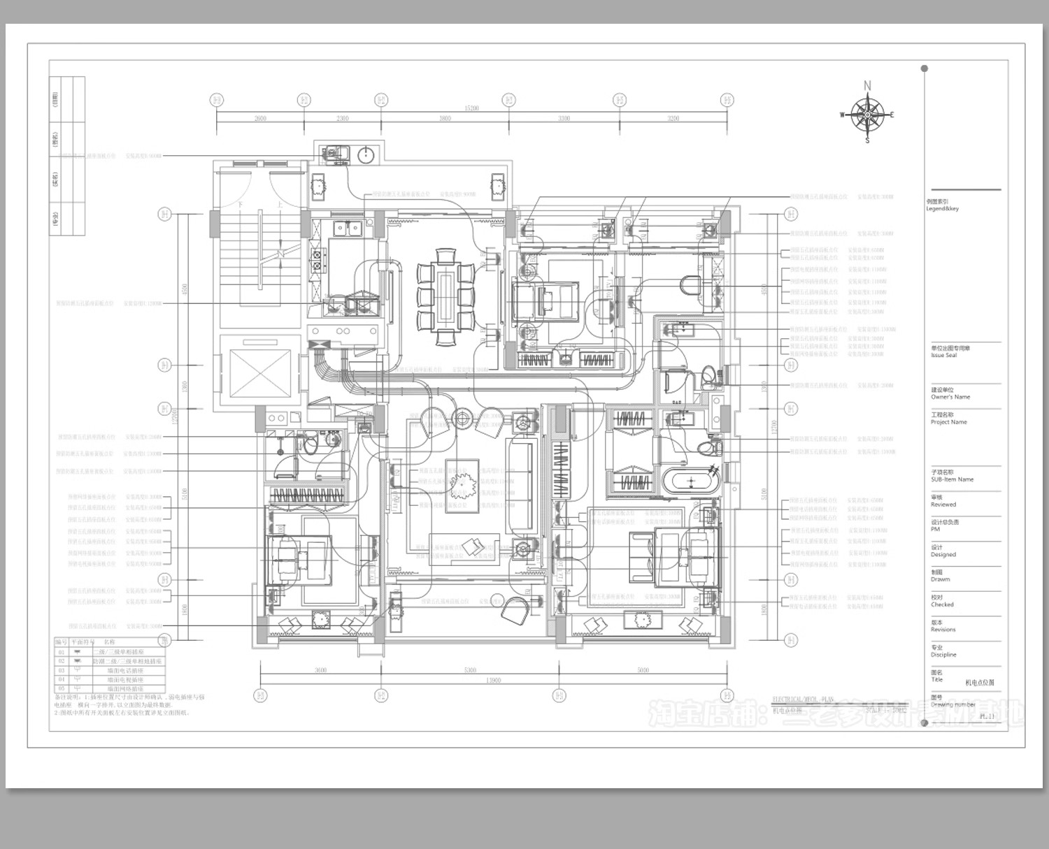
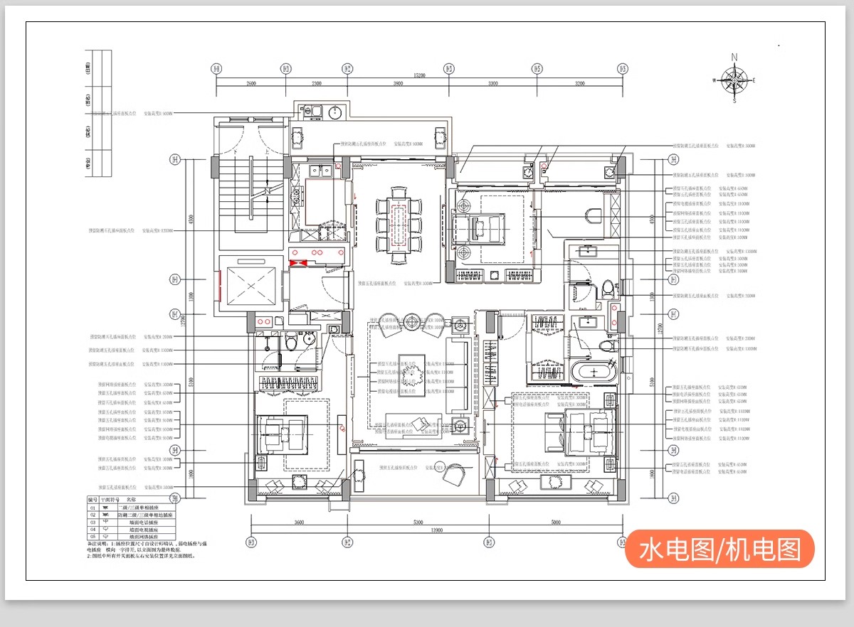
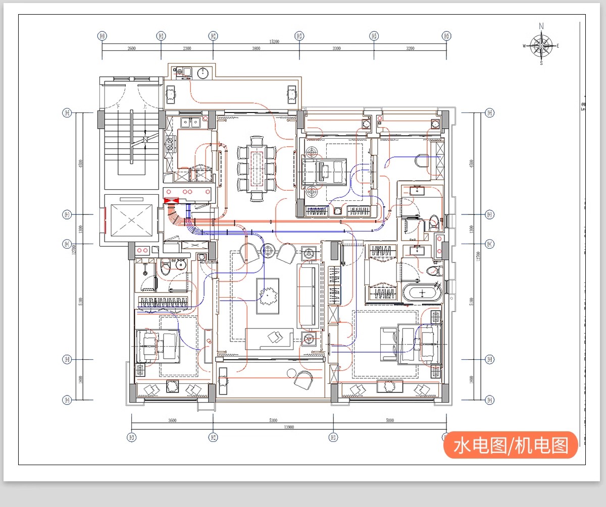
全屋机电连线图及开关插座水电点位灯具图例CAD图库施工图dwg图块abby1年前更新关注私信0347全屋机电连线图及开关插座水电点位灯具图例CAD图库施工图dwg图块此内容为付费资源,请付费后查看R5黄金会员免费钻石会员免费立即购买您当前未登录!建议登陆后购买,可保存购买订单付费资源已售 89 © 版权声明文章版权归作者所有,未经允许请勿转载。THE END设计素材 喜欢就支持一下吧点赞7 分享QQ空间微博QQ好友海报分享复制链接收藏
暂无评论内容