自建房别墅建筑新农村乡村效果施工图三层房屋结构设计图cad图纸

自建房别墅建筑新农村乡村效果施工图三层房屋结构设计图cad图纸-大怪兽分享
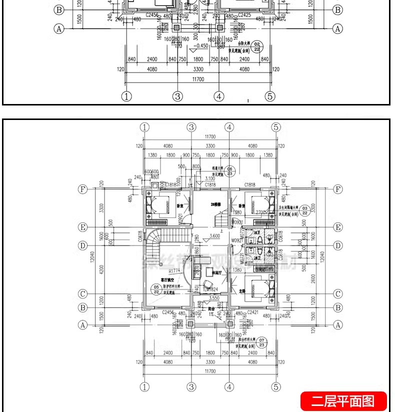
自建房别墅建筑新农村乡村效果施工图三层房屋结构设计图cad图纸
此内容为付费资源,请付费后查看
R1
立即购买
您当前未登录!建议登陆后购买,可保存购买订单
付费资源
已售 69
图片[1]-自建房别墅建筑新农村乡村效果施工图三层房屋结构设计图cad图纸-大怪兽分享
© 版权声明
THE END
喜欢就支持一下吧
点赞13 分享
评论 抢沙发

请登录后发表评论

    暂无评论内容